1: hall
2: kitchen
3: dining
4: living
5: patio
6: scullery
7: bedroom
8: bathroom
9: parking
1: hall
2: kitchen
3: dining
4: living
5: patio
6: scullery
7: bedroom
8: bathroom
9: parking
2
3
6
4
1
2
3
7
4
5
9
8
1
6
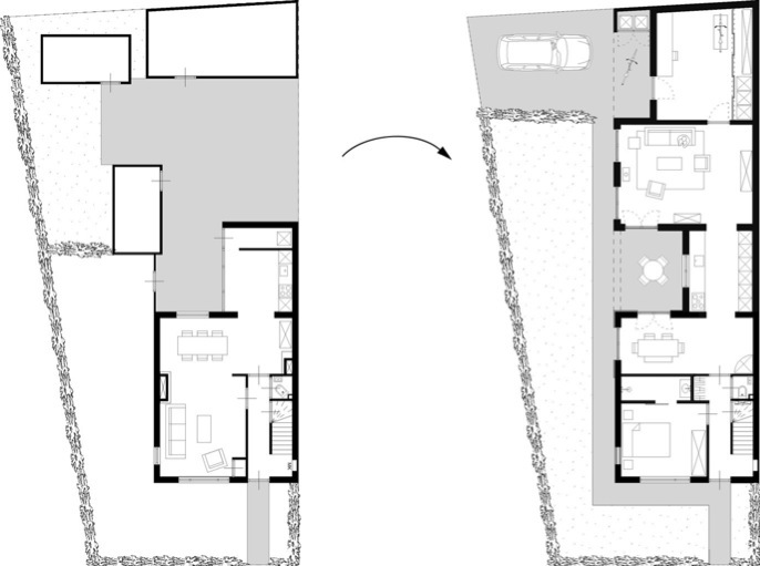
House W
Private client | Denekamp, the Netherlands | 2013/2014
Assignment: renovation and extension of a semi-detached house from the 50’s
Plot: 350m2
Floorspace: 100 (existing) 60m2 (extension)
Buildingcontractor: Oude Moleman, Rossum
The wish of a couple in their mid 60’s, wanting to enjoy their retirement peacefully in a new build home with a small garden and a bed- and bathroom on ground floor level located in the village center, was not fulfilled by building new, but by renovating and extending an existing one.
Due to the perfect situation of the house on it’s plot, an extension heading south-west was the opportunity for transforming the relatively small house from the 50s into a light an airy so called ‘land-based apartment’, fitting the clients wish perfectly.
All functions were turned a 180 degrees. The former living room now contains a bedroom with an en-suite bathroom. The extension shovels itself into the existing house. In it the kitchen, living- and dining-area are situated around a patio, by that they are having a direct relationship to the garden and are bathing in sunlight. The former bathroom and bedrooms on the second floor now are used for guests and as a working space. A new exit-way provides parking on-site. Adjacent the scullery provides a back entrance, typical for houses in this area. From the scullery a sightline towards the front door of the exciting house is created.
For providing a warm and cosy interior feel, a fireplace was installed, the ceiling beams exposed and a color palette for all surfaces had been chosen with brown based gray tones. These all matching the existing furniture of the client.
The existing house has been isolated, the window frames have been replaced by up to date ones. The construction of the extension contains natural building materials: the timber frame construction is isolated with flex and wood fibre panels. The facade is covered with a grayish western red cedar, interior walls are covered with plasterboard and loam plaster operating as heat and humidity buffer. For the floor fine porcelain stoneware was chosen.
Photos: Wouter van der Wolk
2/13