1: hall
2: kitchen
3: dining
4: living
5: terrace
6: scullery
7: study
1: hall
2: kitchen
3: dining
4: living
5: terrace
6: scullery
7: study
3
2
4
5
6
7
1
2
4
1
3
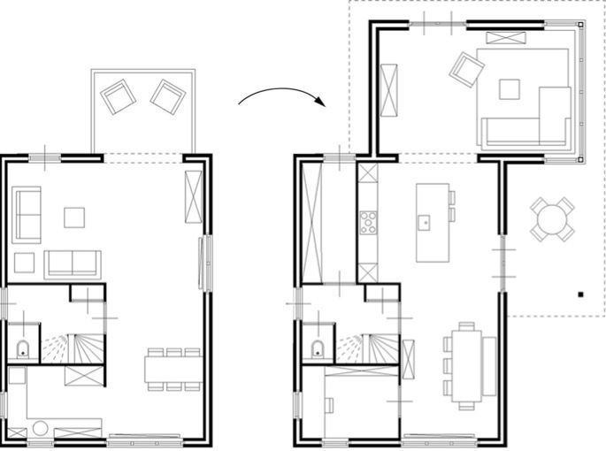
House R
Private client | Oldenzaal, the Netherlands | 2010
Assignment: extension of a single family house from the 90’s
Plot: 450m2
Floorspace: 160m2 (existing) 35m2 (extension)
After a thoroughly reorganization and extension, the house became an open living space with long sight lines. The kitchen is repositioned in the center of the living space and the relation with the surrounding garden is intensified by opening up the facade with garden doors and a bow window. The roofed terrace is placed directly in front of the kitchen island, intensifying it relationship. The old kitchen is transformed into a study.
Photos: Wouter van der Wolk
2/5