1: hall
2: kitchen
3: dining
4: working
5: living
6: tv-room
7: scullery
8: terrace
1: hall
2: kitchen
3: dining
4: working
5: living
6: tv-room
7: scullery
8: terrace
2
1
3
5
4
1
1
6
2
3
7
7
5
8
1
1
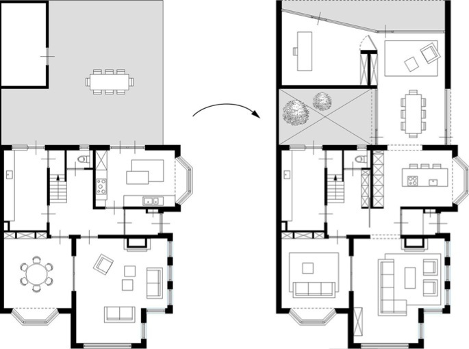
House K
Private client | Amersfoort, the Netherlands | 2012
Assignment: extension of a single family semi-attached house from the 30’s
Plot: 1200m2
Floorspace: 220m2 (existing) 40m2 (extension)
The new designed extension of the clients property provides a patio surrounded by a study and new dining area with reading corner. Cooking and dining are no longer separated anymore; a television room will derive and the living areas will get a better visual connection to the existing garden. The patio underlines this and provides late evening-sun to enter the dining area. The flooring will be made of polyurethane, build in furniture will be done in bright oak and the kitchen will be organized around a new kitchen island. The facade and terrace will be executed in dark brick, thereby the new extension optically melts with the existing property and it’s beautiful Dutch 1930’s architecture.
(Not realized)
2/6
8
8